


银川华夏河图艺术家村
委托方:银川民生房地产开发公司
规模:46418平方米
位置:宁夏银川杨家湖畔
项目时间:2013年3月

创建一个新的画家村,这是一个正式的和概念的尝试.我们参考引用古建筑和传统,与此同时,我们依照我们的创造力去想象未来的城市,未来的社区和生活方式,对过去和未来的反思创建一个新的时代。
Creating a new artist village it is a formal and conceptual adventure.We have reference to ancient architecture and tradition and, at the same time, we can imagine future cities for future communities and lifestyles based on creativity and sharing.A mixture of Past and Future creates a new time.
该项目基地南侧临规划路经十路,北侧紧邻新建美术馆用地,西侧为杨家湖,为项目提供良好的自然条件。
The south side of the provisional planning of the project base path Ten Road, north side next to the new Museum of Art of land, the west side of Lake Yeung Ka provide good natural conditions for the project.
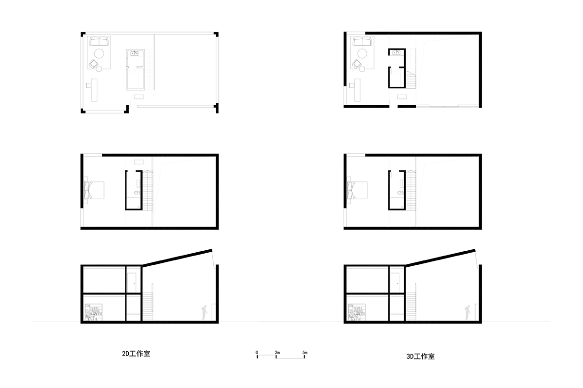
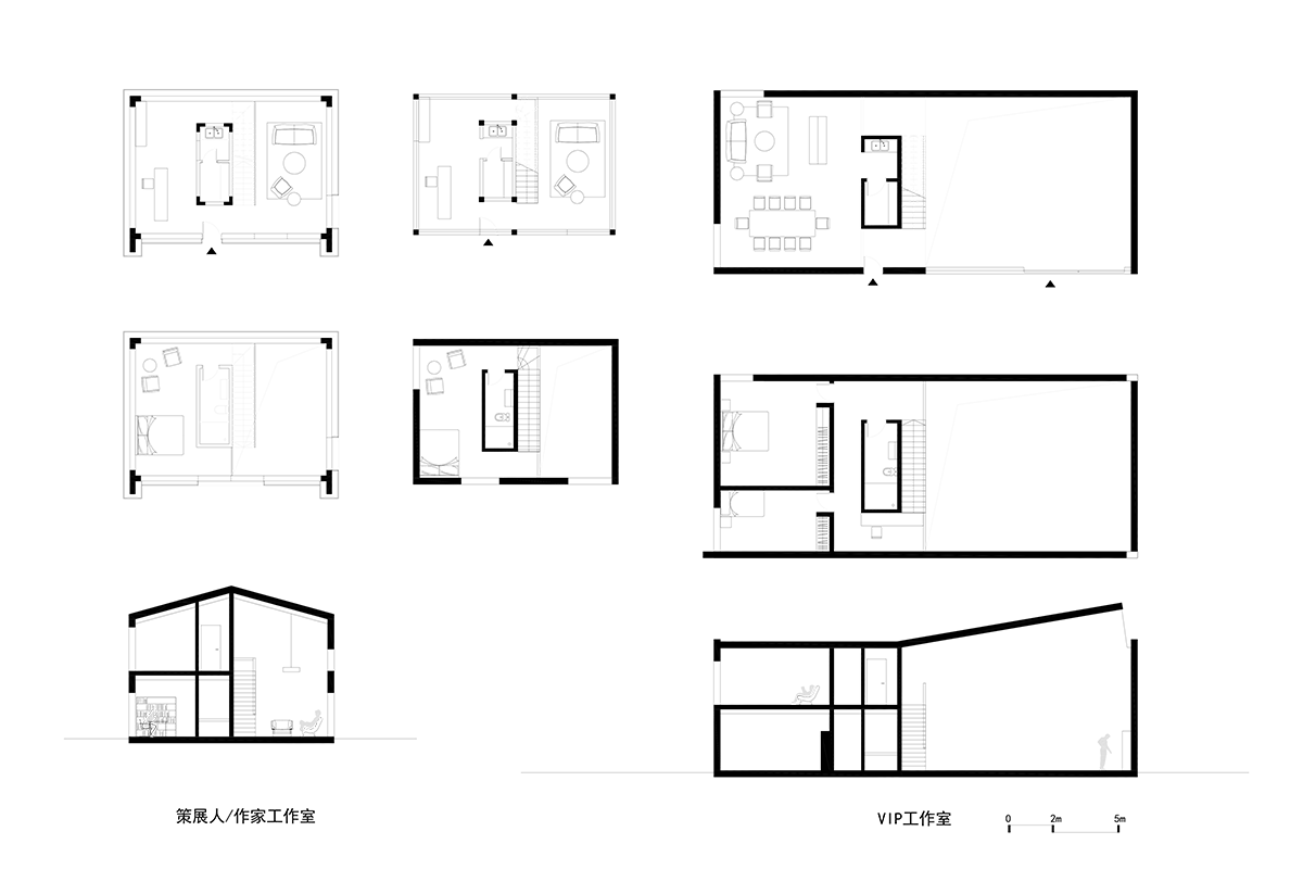
这个项目的主要挑战是从零开始创建一个艺术村。基地并没有给我们任何对方案意向的直接引导或指引。我们决定从主要入口、交通流线及功能组织入手。在这个过程中,我们设计了几个未来画家村不同方案。
The main challenge of this project is to create a small village from scratch. The location doesn’t give us any physical or geographical direct references or guidelines to simply justify just one proposal. We have decided to settle one schematic proposal for the main accesses and circulations. From this scheme we developed several different ideas for the future artist village.













京ICP备11015044号-1