


项目名称: 云冈石窟研究院
Project Name: Yungang Grottoes Research Facility
项目地点: 山西省大同市云冈石窟内
Project Location: Yungang Grottoes, Datong City, Shanxi Province
委托方: 云冈石窟研究院
Clients:Yungang Grottoes Reserch Facility
办公建筑分类;二类
建筑工程等级:二级
人防工程:经业主与人防主管部门协商,本工程人防异地建设
停车位:本工程用地范围内不设置机动车位、非机动车位及无障碍机动车位,所有停车位设置于研究院入口集中停车场处
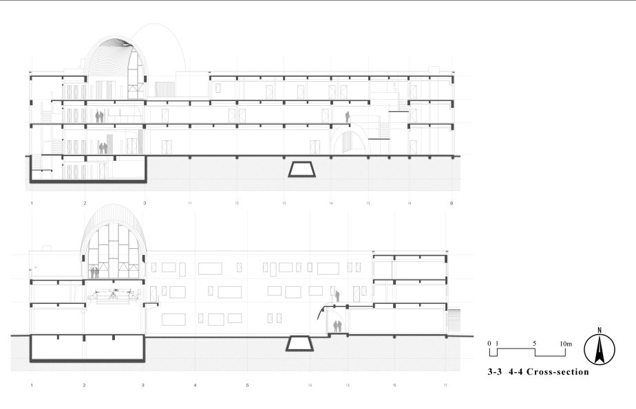
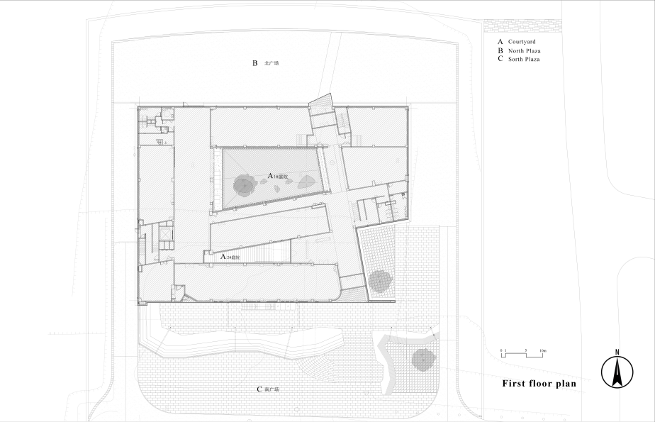
本项目位于大同市云冈区云冈石窟片区(云冈石窟研究院自有用地北侧),属于云冈石窟历史文化保护区范围,建设用地面积7184.38m2,总建筑面积6323.24m。用地北侧为二期发展用地,南侧隔5米宽道路为办公楼,东侧隔18米宽道路为停车场区,西侧为云冈石窟景区。基地东侧、西侧、北侧为挡土墙,高差约2米。本项目是集石质文物保护中心、壁画保护中心及数字化中心为一体的综合办公楼,项目未来承载着云冈研究院科学保护、石窟研究与遗产管理的重要使命。












































云冈石窟文物保护中心承载着保护云冈文化遗产和进行现代化科研工作的重要使命。其背景复杂,历史和文化、空间和公共交通等问题都在这里交织。我们让这个建筑能够最大限度的创造科研人员和历史文化之间的交流平台,提供科学与文化并存的学术研究氛围。
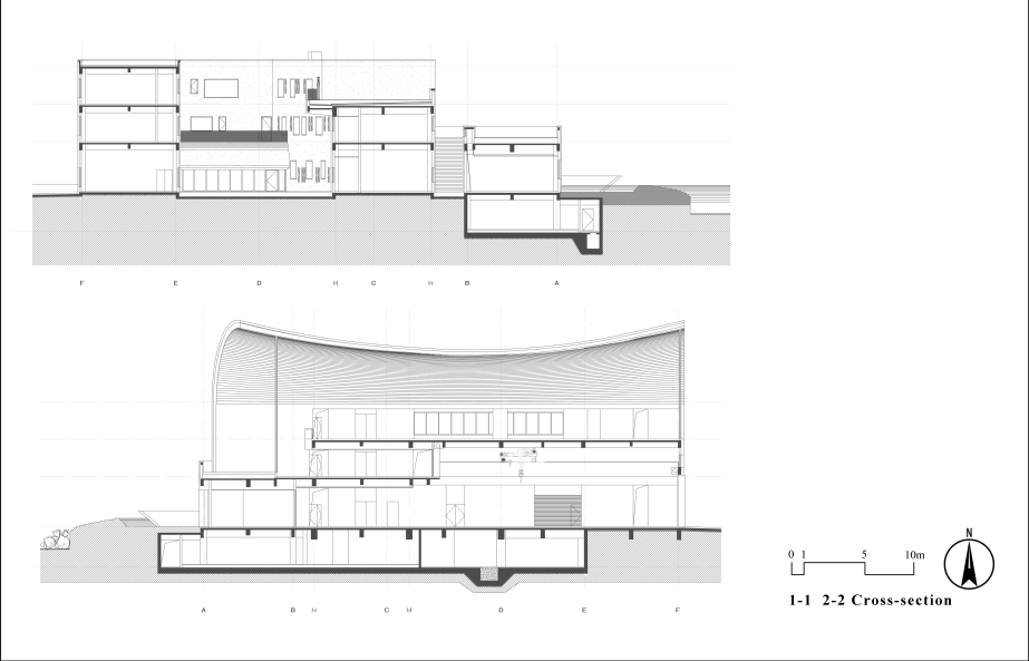
从建筑单体上,该方案不仅和周边环境协调共生,特殊处理的拱形外皮又能形成建筑的独特符号,突出特有的云冈元素,提升区域整体形象。最终该项目在发扬文化云冈、科学云冈、绿色云冈的同时,使云冈石窟进一步发挥世界文化遗产的作用。
▼概念生成

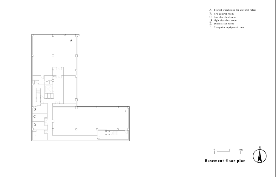
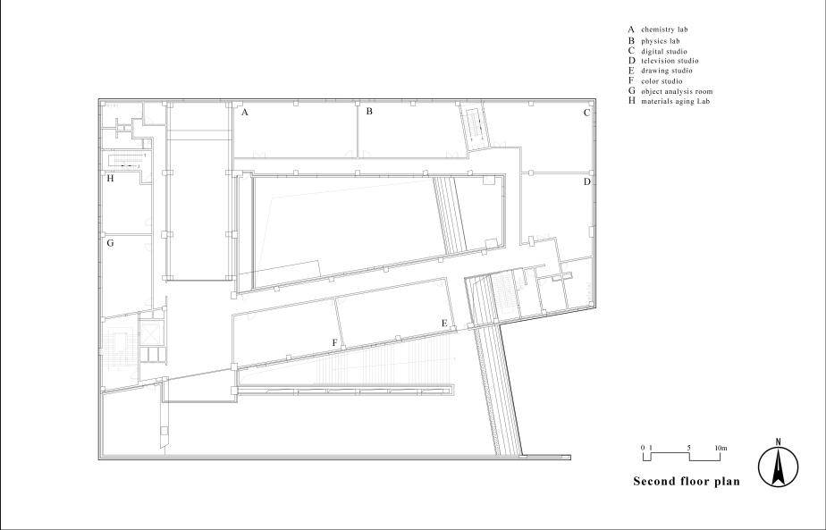
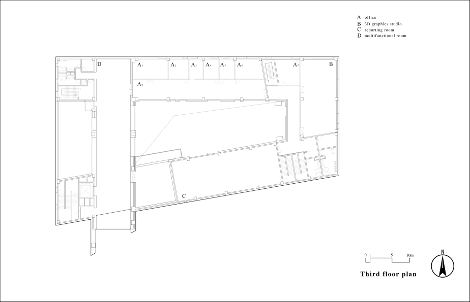
▼设计平面图














京ICP备11015044号-1