


复星国际中心
工程名称:复星国际中心
类型:办公建筑
委托方:北京城建集团
规模:10万平米
位置:朝阳北路北侧,南三里屯路东侧,核桃园北里一街南侧
状态:竣工
项目设计时间:2005年6月
工程名称:复星国际中心
类型:办公建筑
委托方:北京城建集团
规模:10万平米
位置:朝阳北路北侧,南三里屯路东侧,核桃园北里一街南侧
状态:竣工
项目设计时间:2005年6月

设计理念:
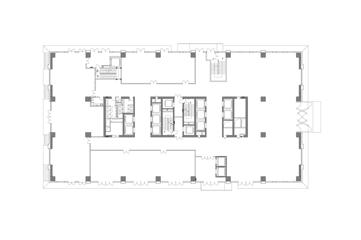
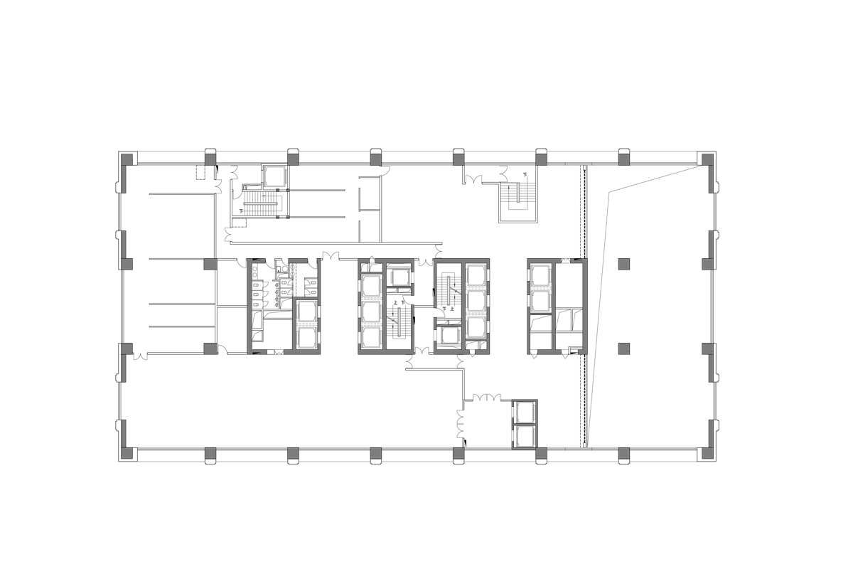
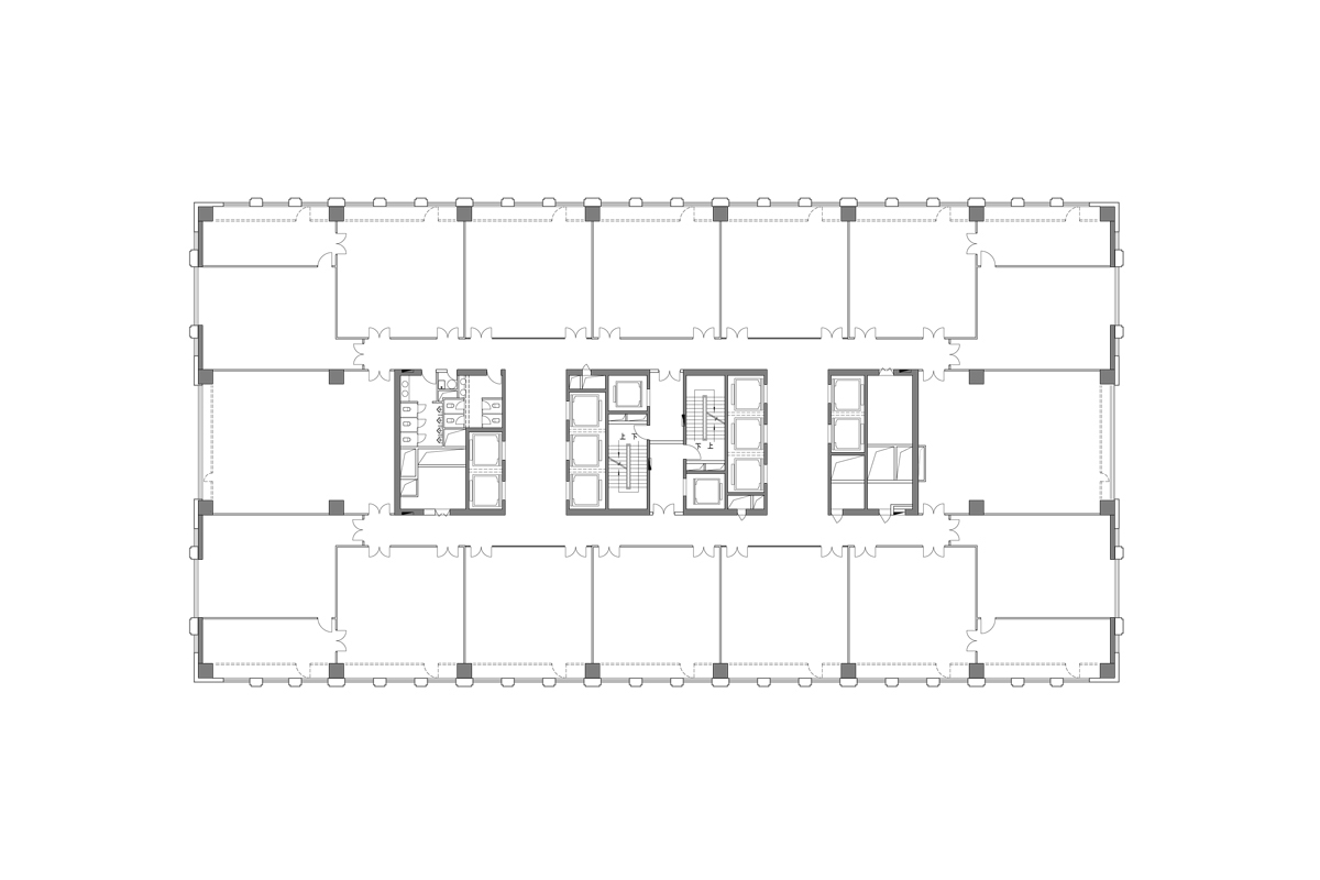
1#楼定位为5A级写字楼,2#楼定位为高档公寓,建筑布局采用围合式,注重楼体之间自然围合而成的空间与周围喧闹环境的对比,从而在基地北侧为使用者营造了一个静谧的内庭院。为体现本项目尊贵,成熟的商务形象,建筑设计时更多考虑的是使用者的感受,落地的大片玻璃,大块的实墙分割,科学的实墙面与玻璃面的配比,使本建筑更富有内涵的同时,更加注重节能,体现了本项目对环境的尊重。













京ICP备11015044号-1