751D•PARK北京时尚设计广场图书馆项目

751D·PARK Library Program

项目名称:751D•PARK北京时尚设计广场图书馆项目


开发商:北京正东电子动力集团有限公司(原751厂)


规划面积:建筑面积约1900平方米


设计时间:2019年8月-

 



本项目位于751D▪PARK北京时尚设计广场火车头广场北侧,原址为原751厂洗煤池灰,是751D▪PARK北京时尚设计广场“十字”商业街区重要节点建筑,为丰富园区内业态,增加区域商业活力,拟在此处建设751图书馆。


场地总图

 



效果图




 













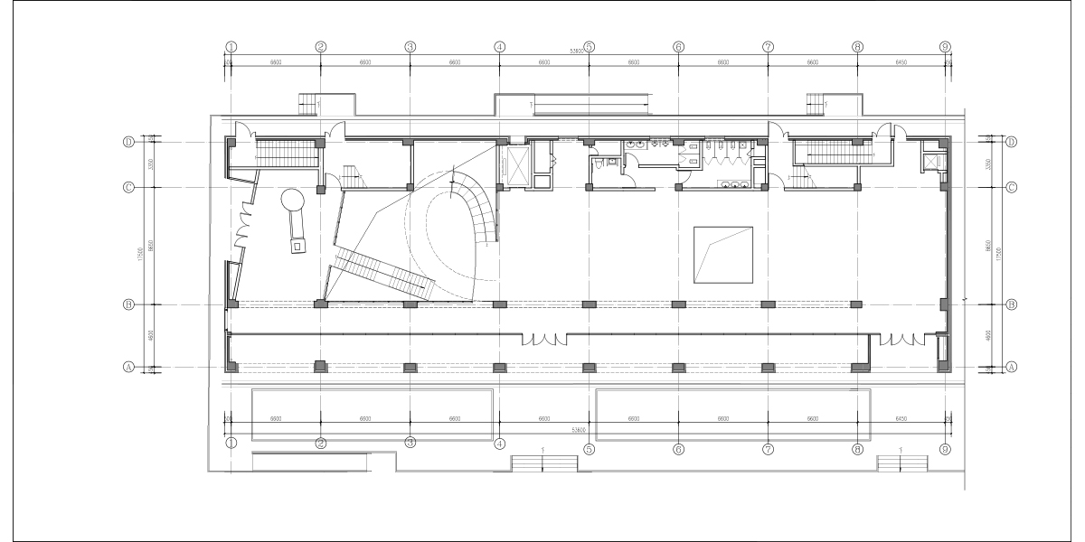
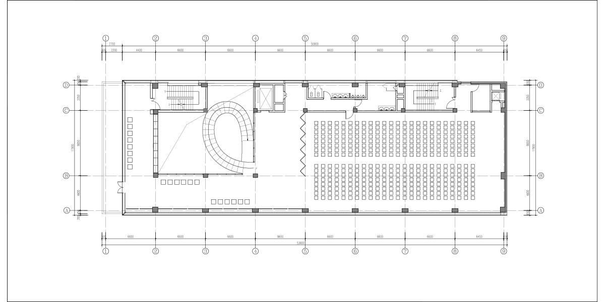
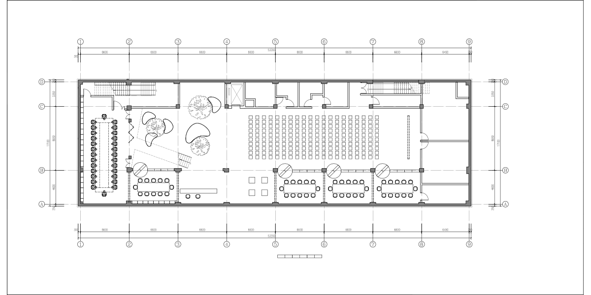
平面图









 

施工现场