

项目名称:宁波·8号公园
Project Name:Ningbo·8th Park
项目地址:宁波市江北区宝马路8号
Project Location:Baoma Road, Jiangbei District, Ningbo
委托方:宁波奥高文化发展有限公司
Client:Ningbo Aogao Cultural Development Co.,Ltd.

培育原创力和创新力,增强企业内在竞争力,增长企业盈利生物链,从而促成产业升级转型;这是中国经济发展的大势所趋,在宁波这样的工业强市尤为突出。
宁波创驿通过文创科创品牌孵化的新思维,建立一种新的产业业态,作为城市人文旅游、中小企业孵化器、原创品牌店及工厂、文创体验公园等,以期将8号公园建立成为宁波的创意产业示范园,形成创作资源、产业资源和生活资源之间的生态链条,创造新经济价值的同时带来新的人文价值和社会价值。
▼实景照片


宁波8号公园·设计原则:
1. 尊重现状
保留有价值的老工厂建筑及园区组织结构,仅对旧建筑进行最小限度和必要的改动,将建筑功能合理的转化及提升为新的使用功能,建立新旧建筑之间的纽带与联系。旧工厂的建筑特点及特色将作为记忆延续及8号公园的特色而形成新的意义。
2. 提升品质
老工厂建筑的维护性能本就较差,更随着岁月更迭而逐渐老化,已不满足单带建筑的基本使用要求。我们利用现代建筑技术及处理手法修复及提高建筑品质,例如增加自然采光通风和视线的需求,对园区原有的状态和品质进行整理及提升。
3. 保留老工业建筑风貌
整体将现代风格及旧工业厂房的建筑风格相结合,创造全时尚艺术的个性空间。通过老建筑的历史感和新兴创意产业氛围相结合,避免新老建筑之间风格及结构间的碰撞,以期创造新旧共生的工业风格及现代时尚艺术个性空间。
结合,避免新老建筑之间风格及结构间的碰撞,以期创造新旧共生的工业风格及现代时尚艺术个性空间。

园区原有建筑多为旧有厂房及办公房。现工厂已迁出,由街道管理。
▼改造前老厂房及旧园区

▼设计效果图





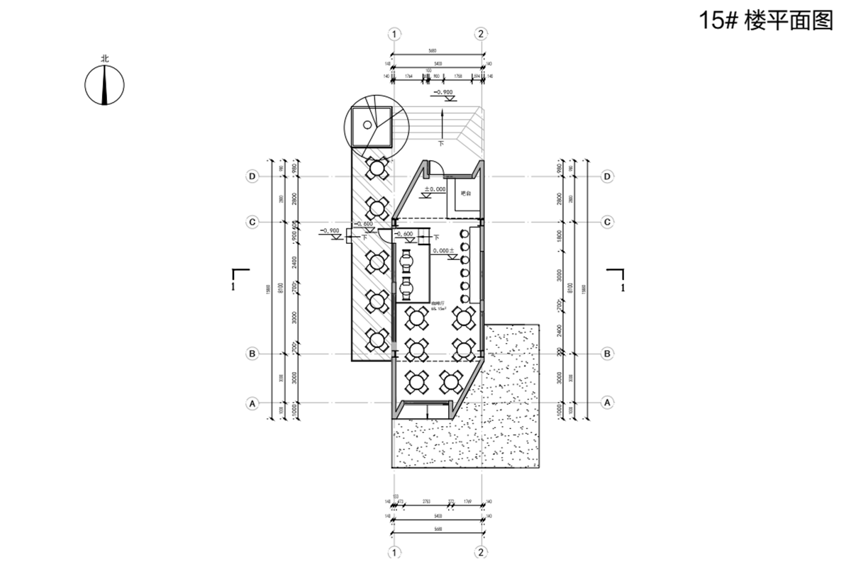
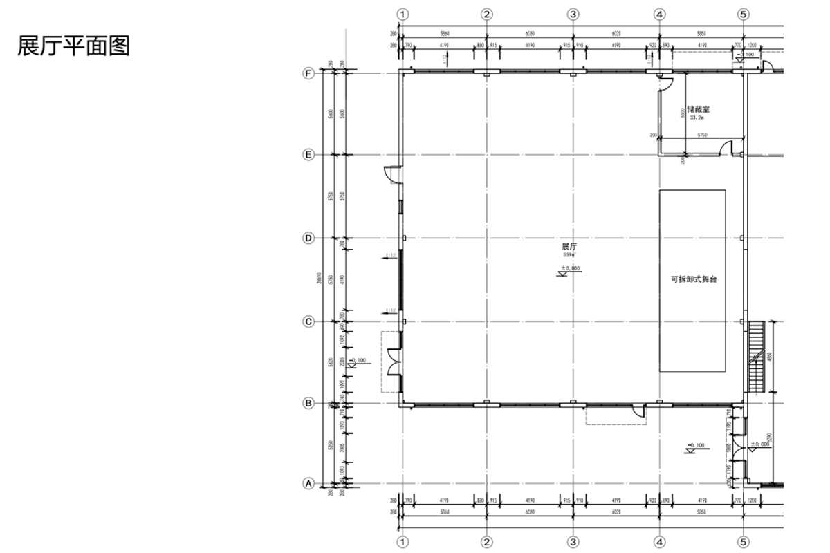
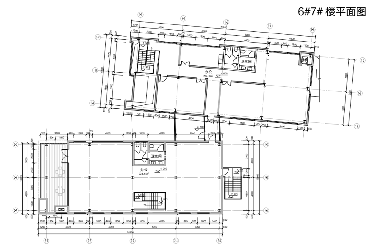
▼设计平面图





京ICP备11015044号-1