

项目名称:北京动物园熊猫商店
Project Name: Beijing Zoo - Panda Hall Shop
项目地点:北京市西直门外大街北京动物园内
Project Location: Beijing Zoo, Xizhimenwai Street, Beijing
委托方:北京动物园
Client: Beijing Zoo

北京动物园成立于1906 年,拥有超过百年历史,是中国最大的动物园之一,也是北京市的标志性景点,曾创下1200 万人的年游客流量记录。其中,熊猫馆为北京动物园的一大热点与亮点,吸引了大量国内外游客前来参观。
The Beijing Zoo was built in the year of 1904, is one of the biggest zoo in China, and also the iconic scenic spot in Beijing. Its record of annual pedestrian flow is 12,000,000 tourists. The Panda Hall as one of the hottest spot and highlight, has attracted many travelers from domestic and worldwide.
▼现场照片 Photos of the scene




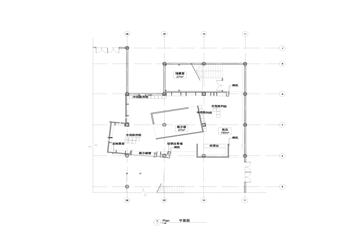
本次项目的北京动物园熊猫商店位于亚运熊猫馆内西区,占地150平方米。
店铺以熊猫为主题,并以熊猫村为设计理念,在类似草丛树木的商品展示架及平台上展示熊猫玩具及相关主题产品,以图创造熊猫在大自然游玩的轻松及欢乐购物氛围。
The Panda Hall Shop from this project is located in the west part of the Asian Games Panda Hall, covers around 150 square meters.
The design concept of the Shop is Panda Village. Within the main theme of Panda, the designer is aim to build an environment that imitate nature, with not only the layout and view of the store, but also store logo and panda-themed merchandises. Merchandises, such as Panda stuff toys, are demonstrated on merchandise display racks and platforms that mimic grass ground and trees, just like real life pandas are playing around, to create a fun and relax atmosphere for the shopping environment.

▼效果图 Effect graph


▼鸟瞰图 Aerial View

▼平面图 Floor Plan




▼商标设计 Designed Logo


▼产品设计 Merchandise Design




▼商品展示 Merchandise Display


京ICP备11015044号-1