


包头东河
位置:内蒙古自治区包头市
状态:建设中
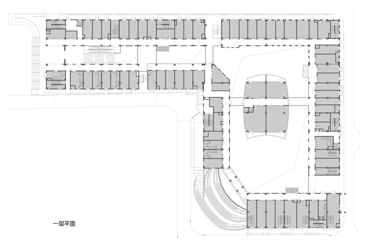
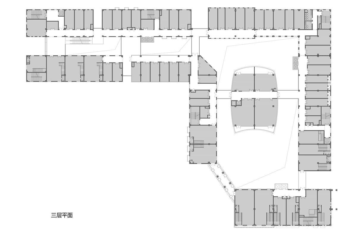
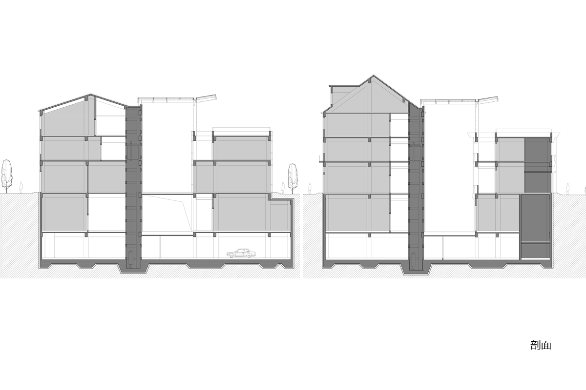
项目名称:包头东河汇金广场
Project Name: Baotou Donghe Huijin Plaza
项目地点:内蒙古自治区包头市
Project Location: Baotou City, Inner Mongolia.
委托方:包头市蓝泽房地产开发有限公司
Client:Baotou Lanze Real Estate Development Company


设计理念
本项目中体现欧洲风情的立面符号元素分三类:文化符号元素,简化符号元素,以及纯现代符号元素。在当今地产的制度环境和运作模式下,使商业街区在一定程度上体现游牧空间理论。将属于不同时代的文化场景并置,把多元的建筑元素杂揉在一起,可以在更大程度上吸引人流,激发街区活力。
本项目将商业部分的不同区块设置为欧洲的多国风格,并从特定国家某个城市中抽取片段,来体现不同国家的文化符号。
Design Concept
Three facade symbol elements that demonstrate Europe culture in this project are Culture symbol element, Shortened notation and pure Contemporary symbol element. Under the modern institutional environment and operation mode, reflect the nomadism space method in the commercial district. Apposite multicultural scenes from different era and mix multi-architectural elements together, will attract more costumers and stimulate the energy of the block.
This project will set up different commercial block into styles that from different Europe countries, and extract fragment from specific country to demonstrate different cultural symbol.











京ICP备11015044号-1